Construction Documents

Before we can turn your pre-application record into building permit record, a complete set of construction documents is required (also known as a "complete submittal"). To determine what a complete submittal is for your project, you can discuss your project with a Permit Technician. To get the most out of this conversation, bring a completed site plan and have a good understanding of what you are proposing to build.

Design documents are a type of construction document that is NOT provided by the County. Some design documents may be prepared by the applicant and others must be created by a design professional. Below is a list of design documents that could be required for your project. They are roughly organized from most common to least common. Review each design document below to see if it will be required for your project.

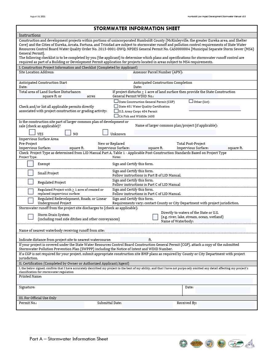
Forms are a type of construction document that is provided by the County. Most forms may be completed by the applicant, but some must be completed by a licensed contractor or licensed design professional. Below is a list of forms that could be required for your project. They are roughly organized from most common to least common. Review each form below to see if it will be required for your project (download link is included).

Other

This is not an exhaustive list of construction documents. Other forms, calculations, and/or designs may be required depending on the scope of your development. You can find additional forms at our Building Division | Forms & Handouts page. You will be notified by staff if more documents are required for your building application.